Spatiu Birou de Vanzare - Zona Unirii 11 Iunie

Descriere

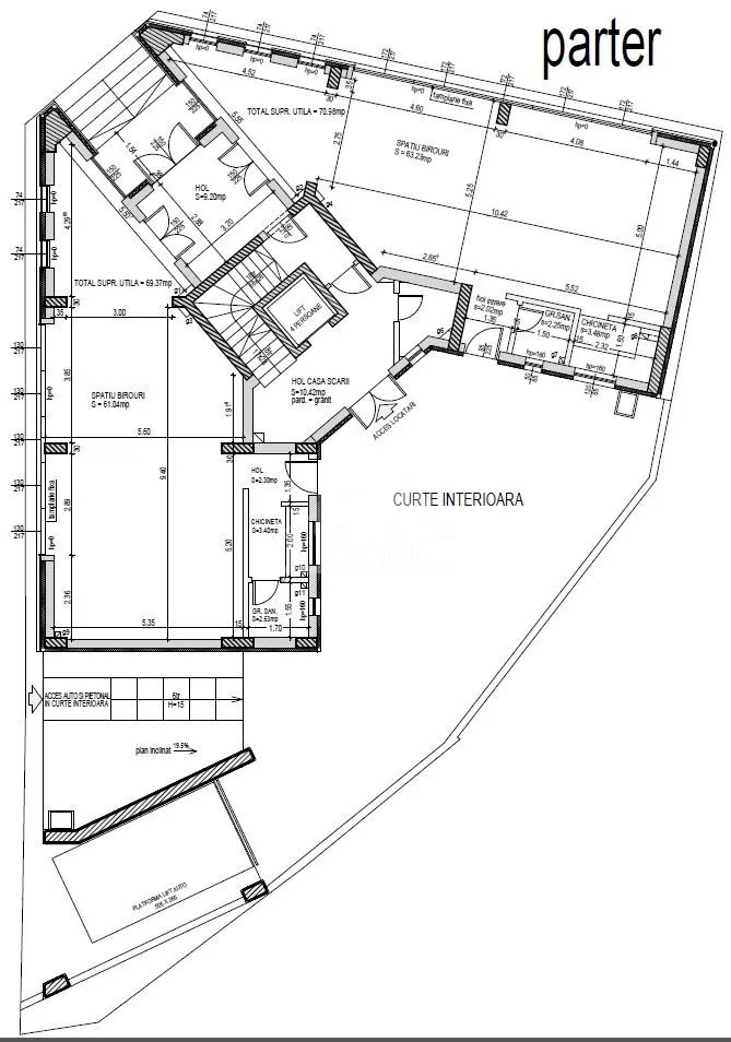
Va propunem doua spatii comerciale care pot gazdui multiple activitati comerciale dar si activitati de birou (consultanta juridica, notariat, consultanta in afaceri etc)



Detalii despre suprafete si preturile aferente regasiti AICI

!
   
   STRUCTURA  DE REZISTENTA
 
   Regim de înaltime bloc: S + P + 3 + 4R

   Fundatie: radier general 50 cm grosime

   Structura rezistenta: sistem cadre ( piloni forati la 6 m adancime, grinda de coronamant, radier general, stalpi, diafragme, grinzi, plansee ) din beton armat IMPERMEABILIZAT (la subsol)

 

   ZIDURI

   Pereti exteriori: caramida Porotherm, 30 cm + tencuiala

   Pereti  interiori de separatie intre apartamente: caramida Porotherm de 30 cm

   Pereti de compartimentare interioara:gips-carton (profil la 30 cm distanta si cate 3 foi de gips-carton pe fiecare parte) fono si termoizolati cu vata minerala bazaltica

 

   FATADA VENTILATA

   - Termosistem format din polistiren 10 cm grosime si AluBond la exterior

   - Ferestre termoizolante: tamplarie PVC Salamander culoare maro cu microventilatie, 3 foi geam (tripan), feronerie metalica si sistem secustic 

 

   TERSASE - termo si hidroizolate 

 

   INSTALATII ELECTRICE

   - Conductoare cupru plin cu sectiune 1,5 mmp pentru circuitele de iluminat, respective 2,5 mmp pentru circuitele de prize, izolate cu o manta ignifuga

   - Accesorii electrice: prize curenti tari, prize curenti slabi ( telefonie, TV, internet), intrerupatoare, tablouri electrice cu sigurante fuzibile cu declansare automata (Biticino)

 

   INSTALATII SANITARE

   - Tevi de PPR montate in sapa pentru alimentare cu apa rece si apa calda de consum

   - Obiecte sanitare Guess, baterii Grohe

 

   INSTALATII TERMICE

   - Bosch - Centrala termica de apartament cu capacitate de 24 kW

   - Sistem tub in tub/ tevi PPR

   - Radiatoare Aluminiu cu robineti termostatati

 

   FINISAJE INTERIOARE APARTAMENTE

   - Pardoseli holuri, bucatarii, bai: placari ceramice Marazzi

   - Pardoseli living-uri, dormitoare: parchet triplustratificat

   - Pereti bai, bucatarii: placari ceramic + vopsea lavabila

   - Pereti holuri, dormitoare, living-uri: vopsea lavabila

   - Tavane : placate cu gips-carton 

   - Usi interior: stejar masiv

   - Usi acces apartamente: metalice

 

   FINISAJE CASA SCARII

   - Pardoseli si scari: placari ceramice

   - Pereti: vopsea lavabila

   - Balustrada: 

 

   LIFT: 4 persoane. silentios, marca MoviLift - Italia

 

   UTILITATI: FURNIZORI si CONTORIZARI

 

   Apa: ApaNova; contorizare individuala*

   Electricitate: Enel; contorizare individuala*

   Gaz: Engie; contorizare individuala*

   *contoarele vor fi amplasate pe casa scarii

 

Birouri disponibile - Pret si Plan

Plan Sp.1

Plan Sp.2

Birouri vandute

Logo Cont

Hogas Consultanta si Dezvoltare

Contacteaza-ne

Vreau sa Cumpar/Inchiriez

Recomandate

Search

Vreau sa

Prin completarea acestui formular vei trimite o cerere de oferta catre toti cei care au in portofoliu si alte imobile potrivite criteriilor tale.