Contul meu
Toggle navigation
Credit Ipotecar
Vanzari/Inchirieri
Ansambluri si Comerciale
Vreau sa Cumpar/Inchiriez
Stiri
Stiri
Credit Ipotecar
Vanzari si Inchirieri
Ansambluri si Comerciale
Vreau sa Cumpar/Inchiriez
Posteaza-ti Anunturile Gratuit
Dictionar
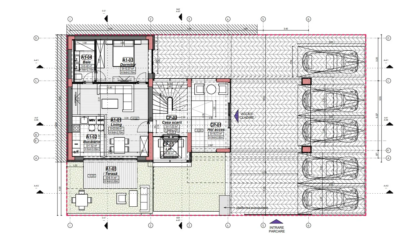
Floreasca Luxury Apartments - De inchiriat / For rent
Descriere
DISPONIBIL PENTRU A FI INCHIRIAT INTEGRAL SAU PARTIAL Noul proiect rezidential, deosebit de tot ceea ce se afla in zona de nord a Bucurestiului, are un regim de inaltime de P+2+3r. Suprafetele interioare au fost compartimentate astfel : Parter - zona de receptie si un apartament cu 2 camere Etaj 1 - doua apartamente de doua camere Etaj 2 - doua apartamente de doua camere Etaj 3 - un apartament de trei camere Toate apartamentele dispun de terase cu suprafete generoase Din punct de vedere tehnic, la aceasta constructie sunt utilizate materiale de cea mai buna calitate. Fatada ventilata este Izolata cu vata minerala bazaltica de 15 cm, liftul panoramic va fi livrat de catre compania KONE, tamplaria ferestrelor este din aluminiu, incalzirea apartamentelor este in pardoseala. Finisajele vor fi de cea mai buna calitate. Nota generala a acestui imobil va fi una de LUX. Va asteptam la vizionare - 0741.08.53.08
Click pentru a vizualiza toata descrierea...
Dotari
Zidarie exteioara
Caramida, Beton Armat,
Zidarie Interioara
Caramida, Gips Carton,
Acoperis
Terasa Necirculabila, Terasa Circulabila,
Facilitati
Centrala pe Gaz,
Utilitati
Apa, Canalizare, Gaze, Electricitate,
Structura
Cadre de Beton Armat,
Apartamente disponibile - Pret si Plan
Etaj: P ,Nr.: 1 , Apartament 2 camere, Suprafata utila: 49 mpu , Suprafata Balcon : 8 mpu
Pret:285 000 €
Etaj: 1 ,Nr.: 2 , Apartament 2 camere, Suprafata utila: 47 mpu , Suprafata Balcon : 25 mpu
Pret:360 000 €
Etaj: 1 ,Nr.: 3 , Apartament 2 camere, Suprafata utila: 49 mpu , Suprafata Balcon : 12 mpu
Pret:305 000 €
Etaj: 2 ,Nr.: 4 , Apartament 2 camere, Suprafata utila: 47 mpu , Suprafata Balcon : 25 mpu
Pret:360 000 €
Etaj: 2 ,Nr.: 5 , Apartament 2 camere, Suprafata utila: 49 mpu , Suprafata Balcon : 12 mpu
Pret:305 000 €
Etaj: 3 ,Nr.: 6 , Apartament 3 camere, Suprafata utila: 66 mpu , Suprafata Balcon : 45 mpu
Pret:550 000 €
Apartamente vandute
HOGAS Andrei
0741.08.53.08
contact@hogas.ro
Contacteaza-ne
Sursa finantarii
Surse proprii
Am nevoie de un credit
Am deja un credit
Am citit si sunt de acord cu
Termenii si Conditiile si Politica de Confidentialitate
Trimite
Vreau sa Cumpar/Inchiriez
Recomandate
1.550.000 €
1 - 10
102 - 96 mp
2
EVO RESIDENCE VERDI PARK
In constructie
24.000 €
1 - 4
15 - 153 mp
2
Apartamente noi de vanzare in Pipera - My Place Residence
Imobil finalizat
117.900 €
1 - 6
115 - 99 mp
2
Apartamente noi de vanzare in Pipera - My Place North
In constructie
255.000 €
4
120 mp
2
CASE NOI DE VANZARE - TUNARI BROWN RESIDENCE
Imobil finalizat
130.000 €
2 - 4
110 - 56 mp
2
EVO Residence Bucuresti NORD - Apartamente pentru vanzare si inchiriere
Imobil finalizat
580.000 €
5
160 mp
2
EVO Residence Bucurestii Noi - Casa Individuala de Vanzare
Imobil finalizat
130.000 €
1 - 3
35 - 74 mp
2
Apartamente noi de vanzare in Lacul Tei - OPERA TEI RESIDENCE
In constructie
170.000 €
2 - 4
40 - 92 mp
2
Apartamente Noi Unirii - Alongside Fountains
Imobil finalizat
130.000 €
1 - 5
124 - 74 mp
2
Apartamente Noi in zona Theodor Pallady - HILS TITANIUM
In constructie
134.000 €
1 - 3
30 - 75 mp
2
Apartamente noi in sectorul 3 - Hils Pallady
Imobil finalizat
108.000 €
1 - 3
31 - 71 mp
2
Apartamente Noi in zona Pantelimon - HILS REPUBLICA
In constructie
154.000 €
1 - 4
37 - 90 mp
2
Apartamente Noi in Zona T.Pallady - Hils Sunrise
In constructie
64.000 €
1 - 2
47 - 65 mp
2
Apartamente Noi in Popesti-Leordeni - Hils Splai
Imobil finalizat
145.200 €
1 - 4
37 - 94 mp
2
Apartamente Noi Panduri - Best Residence
Imobil finalizat
90.000 €
1 - 2
38 - 57 mp
2
Apartamente Noi de Vanzare in Prelungirea Ghencea - Arena Residence III
In constructie
285.000 €
2 - 3
47 - 66 mp
2
Floreasca Luxury Apartments - De inchiriat / For rent
In finisare
179.950 €
2 - 3
46 - 77 mp
2
Apartamente Noi de Vanzare - EVO Residence Aviatiei Tower 2
In finisare
450.000 €
5
200 mp
2
Vila Ioana de Vanzare in Sinaia
Imobil finalizat
0 €
4 - 5
104 - 125 mp
2
Case Noi de Vanzare in Drumul Taberei - Valentine Residence
In finisare
1.320.000 €
5
460 mp
2
Vila de Vanzare in Zona Cotroceni
Imobil finalizat
252.500 €
3
80 mp
2
EVO Residence CENTRAL - Apartamente Noi de Vanzare in zona Traian
In constructie
111.000 €
1 - 3
45 - 96 mp
2
EVO Residence FIZICIENILOR - Apartamente Noi de Vanzare in Sectorul 3
In constructie
125.000 €
3 - 4
100 - 120 mp
2
Case Noi de Vanzare - EVO Residence - 1 Decembrie
Proiect autorizat
163.000 €
4
120 mp
2
Case Noi de Vanzare in Bragadiru - Little England Residence
Imobil finalizat
190.000 €
3
80 - 83 mp
2
Apartamente noi de vanzare 13 Septembrie - Uranus Premium Apartments
In finisare
370.000 €
5
150 - 154 mp
2
Case Noi Corbeanca - MD Investment Villa
In finisare
180.000 €
4
120 mp
2
Casa de Vanzare 4 camere Bragadiiru - EVO Residence V44
Imobil finalizat
109.500 €
APARTAMENTE NOI TINERETULUI - DELTA VACARESTI RESIDENCE
In constructie
65.000 €
APARTAMENTE NOI VITAN - CONFORT CITY
In finisare
15 €
Inchirieri Birouri Bucuresti - Stefan cel Mare Building
Imobil finalizat
15 €
Inchirieri Birouri Bucuresti - The Bridge
Imobil finalizat
73.000 €
APARTAMENTE NOI VITAN - DRISTOR RESIDENTIAL 2
In constructie
175.000 €
APARTAMENTE NOI BUCURESTII NOI - SUPERB RESIDENCE
In constructie
160.000 €
Apartamente Noi Dorobanti - Floreasca Villa Apartments 2
In constructie
0 €
Case Noi Bragadiru - EVO RESIDENCE
Imobil finalizat
110.000 €
Apartamente Noi Bucuresti - Fundeni Lake View
In finisare
1.500.000 €
APARTAMENTE NOI BANEASA AVIATIEI - NORD TOWER RESIDENCE
In finisare
166.000 €
Apartamente de Lux - COTROCENI RESIDENCE
In finisare
129.500 €
APARTAMENTE SI CASE DE VANZARE ZONA VITAN - TREND RESIDENCE
In finisare
55.500 €
APARTAMENTE NOI BUCURESTI - BERCENI MONACO TOWERS
Imobil finalizat
34.650 €
Apartamente Noi Iasi - Zona Moara de Vant - Rezidential Mon Jardin
In constructie
39.905 €
APARTAMENTE NOI DRUMUL TABEREI - BRANCUSI RESIDENCE 3
Imobil finalizat
260.000 €
APARTAMENTE NOI DE LUX ZONA UNIRII - IVORY 48 REZIDENTIAL
In constructie
109.774 €
APARTAMENTE NOI BUCURESTI - SEBASTIAN RESIDENCE 1
In constructie
10.000 €
EVO Residence Bucuresti NORD - Apartamente noi de vanzare in Floreasca Lacul Tei Parcul Verdi
In finisare
1.300.000 €
Case de Lux in Bucuresti - Vanzare sau Inchiriere
Imobil finalizat
0 €
Case Noi Bucuresti - EVO RESIDENCE C50
In finisare
0 €
Apartamente Noi de Vanzare - Mihai Bravu Residence 12
Imobil finalizat
5.000 €
INCHIRIERI BIROURI BUCURESTI - PARCUL CAROL OFFICE BUILDING
Imobil finalizat
1.018.414 €
Apartamente Noi Floreasca - Premium Nord Residence
In finisare
190.000 €
Vila Pensiune de Vanzare in Busteni - Valea Prahovei
Imobil finalizat
1.500 €
Spatiu Comercial de Inchiriat in Prelungirea Ghencea
Imobil finalizat
1.500 €
Spatiu Birou de Inchiriat in Cotroceni - Eroilor
Imobil finalizat
197.700 €
Spatiu Birou de Vanzare - Zona Unirii 11 Iunie
Imobil finalizat
120.000 €
Spatiu Comercial de Vanzare in Zona Unirii Principatele Unite
Imobil finalizat
267.500 €
Apartamente Noi de Vanzare - Dorobanti Capitale - Victoriei Premium Residence
Proiect autorizat
120.000 €
APARTAMENTE NOI DRISTOR - VITAN RESIDENCE 2
In finisare
285.000 €
Apartamente Noi de Vanzare Stefan cel Mare - EVO CENTRAL Residence
In constructie
175.000 €
Apartamente Noi de Vanzare - Eminescu Residential
Imobil finalizat
0 €
Apartamente Noi de Vanzare - Rahova Residential
In constructie
205.000 €
Case Noi de Vanzare in Popesti - Leordeni
In constructie
0 €
Apartamente Noi de Vanzare - Zona Parcul Carol - Filaret - Viilor - ASL RESIDENCE
In finisare
101.065 €
Central Adress - Apartamente Noi de Vanzare
In constructie
122.200 €
Apartamente Noi de Vanzare Zona Vitan - Mihai Bravu Residence 14
In constructie
199.000 €
Case Noi de Vanzare - Corbeanca Sun Residence
In finisare
750.000 €
Case Noi de Vanzare - Snagov Luxury Villa
Imobil finalizat
15.000 €
VILA PARIS de inchiriat in zona Dorobanti Capitale
Imobil finalizat
125.000 €
Case Noi Bucuresti - EVO Residence - Casa EMA
In finisare
101.000 €
APARTAMENTE NOI DE VANZARE - HILS PALLADY
Imobil finalizat
120.000 €
Case Noi Bucuresti - EVO Residence - Casa ALINA
Proiect autorizat
61.000 €
Apartamente Noi de Vanzare zona Vitan - Hils Splaiul Independentei
In finisare
450.000 €
Casa Individuala de Vanzare - EVO Residence Bucurestii Noi
In constructie
130.000 €
Case Noi Bucuresti - EVO Residence - CASA SABINA
Proiect autorizat
52.500 €
APARTAMENTE NOI MILITARI - PACII RESIDENCE 2
Imobil finalizat
123.500 €
Case Noi Bucuresti - Villa Cubica
Proiect autorizat
81.000 €
Case Noi Bucuresti - Villa Emilia
Proiect autorizat
94.250 €
Case Noi Bucuresti - Vila Montana
Proiect autorizat
64.200 €
Case Noi Bucuresti - Vila Holyday
Proiect autorizat
86.400 €
Case Noi Bucuresti - Vila de Piatra
Proiect autorizat
170.000 €
Case Noi Bucuresti - EVO Residence V44
Imobil finalizat
120.000 €
APARTAMENTE NOI PIATA SUDULUI - SUN PLAZA DELTA VIEW
In constructie
150.000 €
Apartamente noi Cotroceni - DRUMUL SARII RESIDENCE
Imobil finalizat
Search
Vanzari/Inchirieri
Ansambluri Rezidentiale
Judet
Toate Judetele
Alba
Arad
Arges
Bacau
Bihor
Bistrita-Nasaud
Botosani
Brasov
Braila
Buzau
Calarasi
Caras-Severin
Cluj
Constanta
Covasna
Dambovita
Dolj
Galati
Giurgiu
Gorj
Harghita
Hunedoara
Ialomita
Iasi
Ilfov
Maramures
Mehedinti
Mures
Neamt
Olt
Prahova
Satu Mare
Salaj
Sibiu
Suceava
Teleorman
Timis
Tulcea
Vaslui
Valcea
Vrancea
Bucuresti
necunoscut
Tip anunt
Vanzari si Inchirieri
Vanzari
Inchirieri
Compartimentare
Toate Compartimentarile
Decomandat
Semidecomandat
Nedecomandat
Radial
Localitate
Toate Localitatile
Tip imobil
Toate Tipurile de Imobile
Apartament
Boxa
Casa Individuala
Casa Duplex
Casa Insiruita
Garsoniera
Parcare Interioara
Parcare Exterioara
Penthouse
Studio
Spatiu Comercial
Spatiu Birouri
Spatiu Depozitare
Teren
Pret
Zona
Toate Zonele
Nr. Min. Camere
0
1
2
3
4
5
6
7
8
9
10
Nr. Max. Camere
1
2
3
4
5
6
7
8
9
10
An constructie
1800
1801
1802
1803
1804
1805
1806
1807
1808
1809
1810
1811
1812
1813
1814
1815
1816
1817
1818
1819
1820
1821
1822
1823
1824
1825
1826
1827
1828
1829
1830
1831
1832
1833
1834
1835
1836
1837
1838
1839
1840
1841
1842
1843
1844
1845
1846
1847
1848
1849
1850
1851
1852
1853
1854
1855
1856
1857
1858
1859
1860
1861
1862
1863
1864
1865
1866
1867
1868
1869
1870
1871
1872
1873
1874
1875
1876
1877
1878
1879
1880
1881
1882
1883
1884
1885
1886
1887
1888
1889
1890
1891
1892
1893
1894
1895
1896
1897
1898
1899
1900
1901
1902
1903
1904
1905
1906
1907
1908
1909
1910
1911
1912
1913
1914
1915
1916
1917
1918
1919
1920
1921
1922
1923
1924
1925
1926
1927
1928
1929
1930
1931
1932
1933
1934
1935
1936
1937
1938
1939
1940
1941
1942
1943
1944
1945
1946
1947
1948
1949
1950
1951
1952
1953
1954
1955
1956
1957
1958
1959
1960
1961
1962
1963
1964
1965
1966
1967
1968
1969
1970
1971
1972
1973
1974
1975
1976
1977
1978
1979
1980
1981
1982
1983
1984
1985
1986
1987
1988
1989
1990
1991
1992
1993
1994
1995
1996
1997
1998
1999
2000
2001
2002
2003
2004
2005
2006
2007
2008
2009
2010
2011
2012
2013
2014
2015
2016
2017
2018
2019
2020
2021
2022
2023
2024
2025
2026
2026
2025
2024
2023
2022
2021
2020
2019
2018
2017
2016
2015
2014
2013
2012
2011
2010
2009
2008
2007
2006
2005
2004
2003
2002
2001
2000
1999
1998
1997
1996
1995
1994
1993
1992
1991
1990
1989
1988
1987
1986
1985
1984
1983
1982
1981
1980
1979
1978
1977
1976
1975
1974
1973
1972
1971
1970
1969
1968
1967
1966
1965
1964
1963
1962
1961
1960
1959
1958
1957
1956
1955
1954
1953
1952
1951
1950
1949
1948
1947
1946
1945
1944
1943
1942
1941
1940
1939
1938
1937
1936
1935
1934
1933
1932
1931
1930
1929
1928
1927
1926
1925
1924
1923
1922
1921
1920
1919
1918
1917
1916
1915
1914
1913
1912
1911
1910
1909
1908
1907
1906
1905
1904
1903
1902
1901
1900
1899
1898
1897
1896
1895
1894
1893
1892
1891
1890
1889
1888
1887
1886
1885
1884
1883
1882
1881
1880
1879
1878
1877
1876
1875
1874
1873
1872
1871
1870
1869
1868
1867
1866
1865
1864
1863
1862
1861
1860
1859
1858
1857
1856
1855
1854
1853
1852
1851
1850
1849
1848
1847
1846
1845
1844
1843
1842
1841
1840
1839
1838
1837
1836
1835
1834
1833
1832
1831
1830
1829
1828
1827
1826
1825
1824
1823
1822
1821
1820
1819
1818
1817
1816
1815
1814
1813
1812
1811
1810
1809
1808
1807
1806
1805
1804
1803
1802
1801
1800
Cauta
Judet
Toate Judetele
Alba
Arad
Arges
Bacau
Bihor
Bistrita-Nasaud
Botosani
Braila
Brasov
Bucuresti
Buzau
Calarasi
Caras-Severin
Cluj
Constanta
Covasna
Dambovita
Dolj
Galati
Giurgiu
Gorj
Harghita
Hunedoara
Ialomita
Iasi
Ilfov
Maramures
Mehedinti
Mures
Neamt
Olt
Prahova
Salaj
Satu Mare
Sibiu
Suceava
Teleorman
Timis
Tulcea
Valcea
Vaslui
Vrancea
necunoscut
Localitate
Toate Localitatile
Zona
Toate Zonele
Nume Ansamblu
Cautare Rapida (Scrie zona sau numele ansamblului)
APARTAMENTE NOI VITAN - CONFORT CITY
APARTAMENTE NOI BUCURESTII NOI - SUPERB RESIDENCE
Case Noi Bragadiru - EVO RESIDENCE
Apartamente de Lux - COTROCENI RESIDENCE
APARTAMENTE NOI BUCURESTI - BERCENI MONACO TOWERS
APARTAMENTE NOI BUCURESTI - SEBASTIAN RESIDENCE 1
Case Noi Bucuresti - EVO RESIDENCE C50
INCHIRIERI BIROURI BUCURESTI - PARCUL CAROL OFFICE BUILDING
APARTAMENTE NOI DRISTOR - VITAN RESIDENCE 2
Case Noi Bucuresti - EVO Residence - Casa EMA
Case Noi Bucuresti - EVO Residence - Casa ALINA
Case Noi Bucuresti - EVO Residence - CASA SABINA
APARTAMENTE NOI MILITARI - PACII RESIDENCE 2
Case Noi Bucuresti - Villa Cubica
Case Noi Bucuresti - Villa Emilia
Case Noi Bucuresti - Vila Montana
Case Noi Bucuresti - Vila Holyday
Case Noi Bucuresti - Vila de Piatra
Case Noi Bucuresti - EVO Residence V44
APARTAMENTE NOI PIATA SUDULUI - SUN PLAZA DELTA VIEW
Apartamente noi Cotroceni - DRUMUL SARII RESIDENCE
APARTAMENTE NOI TINERETULUI - DELTA VACARESTI RESIDENCE
Inchirieri Birouri Bucuresti - Stefan cel Mare Building
Inchirieri Birouri Bucuresti - The Bridge
APARTAMENTE NOI VITAN - DRISTOR RESIDENTIAL 2
Apartamente Noi Dorobanti - Floreasca Villa Apartments 2
Apartamente Noi Bucuresti - Fundeni Lake View
APARTAMENTE NOI BANEASA AVIATIEI - NORD TOWER RESIDENCE
APARTAMENTE SI CASE DE VANZARE ZONA VITAN - TREND RESIDENCE
Apartamente Noi Iasi - Zona Moara de Vant - Rezidential Mon Jardin
APARTAMENTE NOI DRUMUL TABEREI - BRANCUSI RESIDENCE 3
APARTAMENTE NOI DE LUX ZONA UNIRII - IVORY 48 REZIDENTIAL
EVO Residence Bucuresti NORD - Apartamente noi de vanzare in Floreasca Lacul Tei Parcul Verdi
Case de Lux in Bucuresti - Vanzare sau Inchiriere
Apartamente Noi de Vanzare - Mihai Bravu Residence 12
Apartamente Noi Floreasca - Premium Nord Residence
Vila Pensiune de Vanzare in Busteni - Valea Prahovei
Spatiu Comercial de Inchiriat in Prelungirea Ghencea
Spatiu Birou de Inchiriat in Cotroceni - Eroilor
Spatiu Birou de Vanzare - Zona Unirii 11 Iunie
Spatiu Comercial de Vanzare in Zona Unirii Principatele Unite
Apartamente Noi de Vanzare - Dorobanti Capitale - Victoriei Premium Residence
Apartamente Noi de Vanzare Stefan cel Mare - EVO CENTRAL Residence
Apartamente Noi de Vanzare - Eminescu Residential
Apartamente Noi de Vanzare - Rahova Residential
Case Noi de Vanzare in Popesti - Leordeni
Apartamente Noi de Vanzare - Zona Parcul Carol - Filaret - Viilor - ASL RESIDENCE
Central Adress - Apartamente Noi de Vanzare
Apartamente Noi de Vanzare Zona Vitan - Mihai Bravu Residence 14
Case Noi de Vanzare - Corbeanca Sun Residence
Case Noi de Vanzare - Snagov Luxury Villa
VILA PARIS de inchiriat in zona Dorobanti Capitale
APARTAMENTE NOI DE VANZARE - HILS PALLADY
Apartamente Noi de Vanzare zona Vitan - Hils Splaiul Independentei
Casa Individuala de Vanzare - EVO Residence Bucurestii Noi
Casa de Vanzare 4 camere Bragadiiru - EVO Residence V44
Case Noi Corbeanca - MD Investment Villa
Apartamente noi de vanzare 13 Septembrie - Uranus Premium Apartments
Case Noi de Vanzare in Bragadiru - Little England Residence
Case Noi de Vanzare - EVO Residence - 1 Decembrie
EVO Residence FIZICIENILOR - Apartamente Noi de Vanzare in Sectorul 3
EVO Residence CENTRAL - Apartamente Noi de Vanzare in zona Traian
Vila de Vanzare in Zona Cotroceni
Case Noi de Vanzare in Drumul Taberei - Valentine Residence
Vila Ioana de Vanzare in Sinaia
Apartamente Noi de Vanzare - EVO Residence Aviatiei Tower 2
Floreasca Luxury Apartments - De inchiriat / For rent
Apartamente Noi de Vanzare in Prelungirea Ghencea - Arena Residence III
Apartamente Noi Panduri - Best Residence
Apartamente Noi in Popesti-Leordeni - Hils Splai
Apartamente Noi in Zona T.Pallady - Hils Sunrise
Apartamente Noi in zona Pantelimon - HILS REPUBLICA
Apartamente noi in sectorul 3 - Hils Pallady
Apartamente Noi in zona Theodor Pallady - HILS TITANIUM
Apartamente Noi Unirii - Alongside Fountains
Apartamente noi de vanzare in Lacul Tei - OPERA TEI RESIDENCE
EVO Residence Bucurestii Noi - Casa Individuala de Vanzare
EVO Residence Bucuresti NORD - Apartamente pentru vanzare si inchiriere
CASE NOI DE VANZARE - TUNARI BROWN RESIDENCE
Apartamente noi de vanzare in Pipera - My Place North
Apartamente noi de vanzare in Pipera - My Place Residence
EVO RESIDENCE VERDI PARK
Tip Proprietate
Toate Tipurile de Proprietati
Apartamente
Case
Spatii Comerciale si Birouri
Proiecte Propuse De Arhitecti
Rate la Dezvoltator
Selecteaza rate la dezvoltator
Da
Nu
Cauta
Stiri imobiliare
Un nou proiect rezidential exceptional in zona Parcului Verdi
Hai sa vezi cele mai frumoase apartamente din Pipera
O Superba Vila in zona de Nord a Capitalei
HOGAS Consultanta Promovare Dezvoltare
Casa de Vanzare este izolata cu vata minerala bazaltica
Vino la TARGUL NATIONAL IMOBILIAR !!!
La ARENA RESIDENCE III inca mai sunt garsoniere disponibile
vezi toate stirile...
Vreau sa
Cumpar
Inchiriez
Toate Judetele
Alba
Arad
Arges
Bacau
Bihor
Bistrita-Nasaud
Botosani
Brasov
Braila
Buzau
Calarasi
Caras-Severin
Cluj
Constanta
Covasna
Dambovita
Dolj
Galati
Giurgiu
Gorj
Harghita
Hunedoara
Ialomita
Iasi
Ilfov
Maramures
Mehedinti
Mures
Neamt
Olt
Prahova
Satu Mare
Salaj
Sibiu
Suceava
Teleorman
Timis
Tulcea
Vaslui
Valcea
Vrancea
Bucuresti
necunoscut
Toate Zonele
Toate Localitatile
Tip Imobil
Apartament
Boxa
Casa Individuala
Casa Duplex
Casa Insiruita
Garsoniera
Parcare Interioara
Parcare Exterioara
Penthouse
Studio
Spatiu Comercial
Spatiu Birouri
Spatiu Depozitare
Teren
Sursa finantarii
Surse proprii
Am nevoie de un credit
Am deja un credit
Valoare Credit in Euro
Sunt de acord cu
termenii si conditiile
Sunt de acord cu
politica GDPR
Trimite
Prin completarea acestui formular vei trimite o cerere de oferta catre toti cei care au in portofoliu si alte imobile potrivite criteriilor tale.